18 Wide

Close

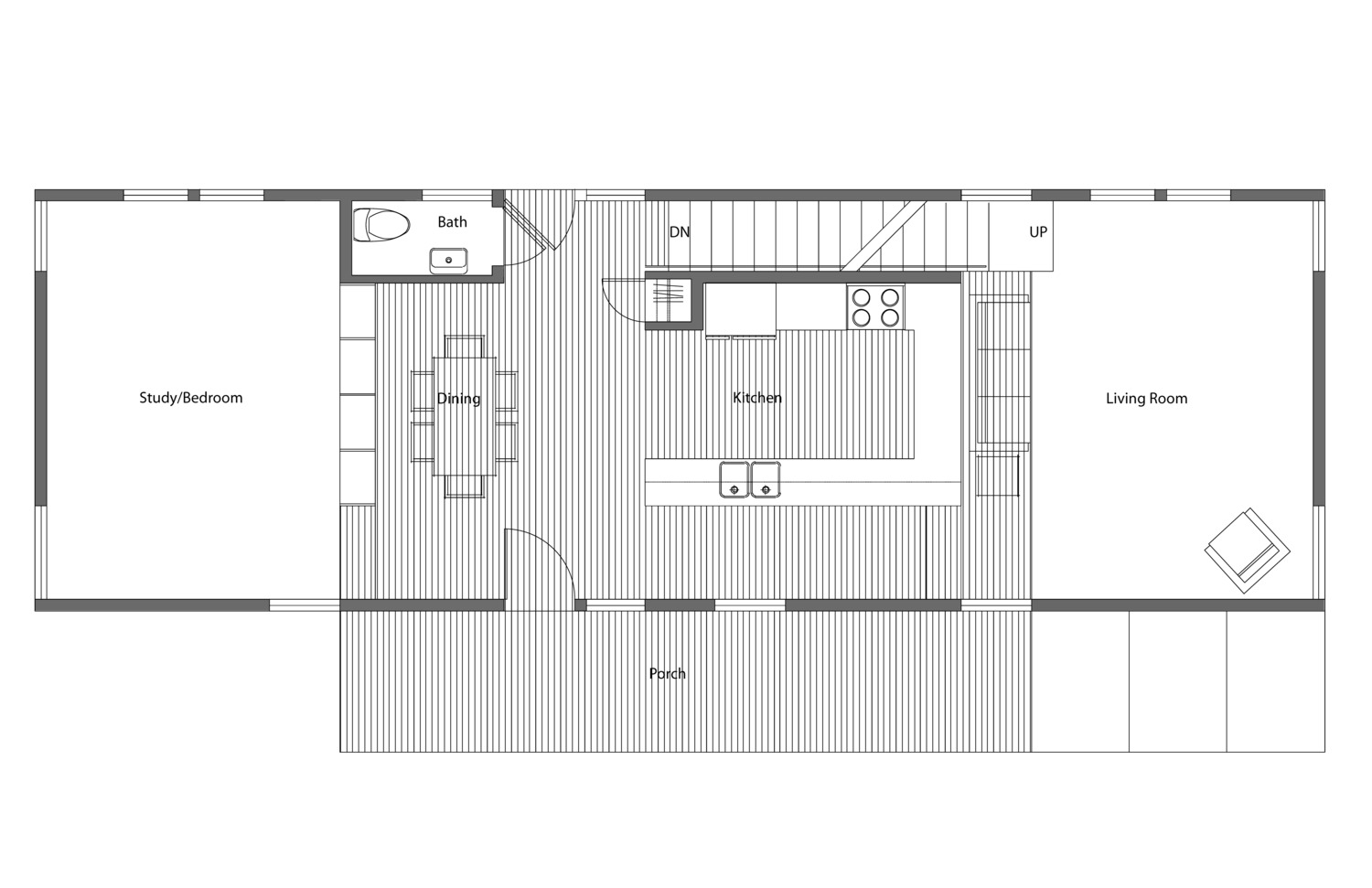
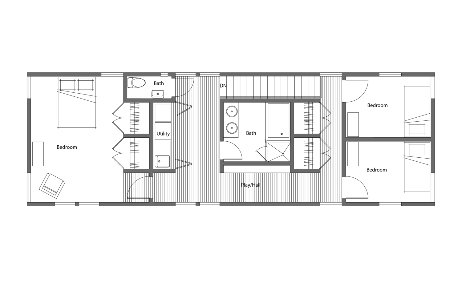
Only 18 feet wide, this prototypical design proposes a plan for expansive modern living within the constraints of a tight urban lot. The location of windows relative to zones of movement and away from stationary parts of domestic life keeps the interior light-filled, private, and perceptually far larger than its 1800 square foot interior. The kitchen is located centrally and forms the heart of domestic life with adjacency to both the living area and family room (or an optional 4th bedroom).

Leave a Reply

Your email address will not be published. Required fields are marked *