Shaker Auditorium

Close

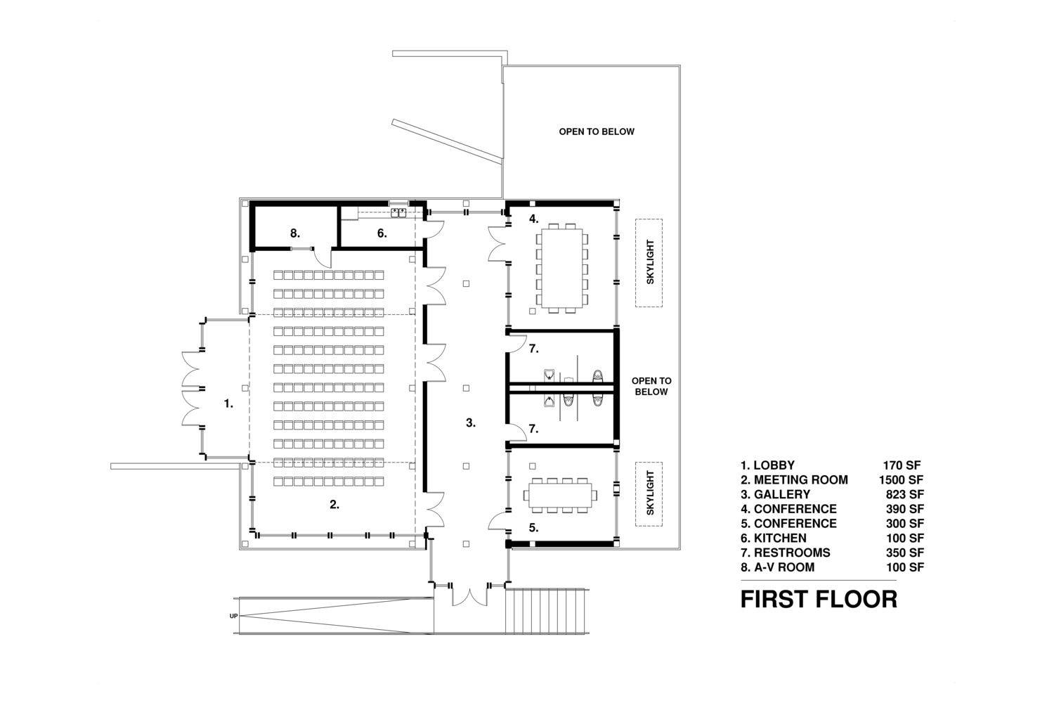
An outgrowth of the Center for Field Studies master plan, the renovation of this barn is meant to compliment the field station program with facilities for public education and outreach. The program developed to include a large lecture hall with adjacent support spaces, exhibit space, two meeting rooms, and restrooms. The lower level of the barn would be converted into archaeology archive space and service space for mechanicals and rain water collection. The large loft space under the barn’s mansard roof was to be kept untouched as a bat roosting space.

Leave a Reply

Your email address will not be published. Required fields are marked *