This proposal for a multi-disciplinary earth sciences field station is a joint project between the University of Cincinnati and the Hamilton County Park District. Containing research, laboratory, and classroom facilities for archaeology, geography, geology, biology, and earth sciences this building will be built in multiple stages over the next several years. The site requires balancing existing Shaker farm structures and historical foundation remnants with a restored wetland and existing agricultural uses.
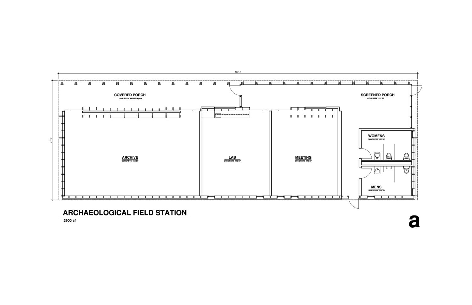
The proposed scheme is more an elaborate screen porch than high-tech laboratory. A thickened spine of structure defines the boundary between laboratory rooms and the porch corridor. This thickened structure holds the technical needs including lab ventilation, archive storage, sinks and plumbing, natural daylighting, and exhibit areas.
















